Concurso para o Projeto Municipal de Habitação em Carcavelos
Este concurso tem como objetivo primordial o estudo e desenvolvimento de uma forma de habitar que responda às atuais necessidades dos seus utilizadores. Observamos nos tempos que correm alterações evidentes na forma como a sociedade se relaciona, e consequentemente, na forma como o indivíduo se apropria do espaço que habita, tanto em família como em comunidade. Neste sentido, procuramos criar espaços de dimensões essenciais, que sejam versáteis e que permitam ser adaptados pelos seus utilizadores em função dos seus modos de vivência, garantindo sempre as condições mínimas de habitabilidade através do cumprimento dos regulamentos em vigor.
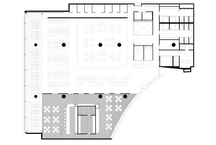
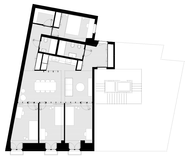
A procura de uma solução contemporânea, que esteja integrada no local, passa também pela valorização do uso dos espaços exteriores. Para tal, é proposto a existência de varandas ao longo do perímetro exterior de todo o edifício. Estas varandas, que funcionam como projeção dos espaços interiores, são uma mais valia para o apartamento, permitindo desta forma estabelecer uma relação privilegiada envolvente. Para o interior do pátio, esta ligação com o espaço exterior, acontece através do uso das galerias de distribuição como zonas de uso comum. O próprio pátio é proposto como um grande espaço de uso comunitário.
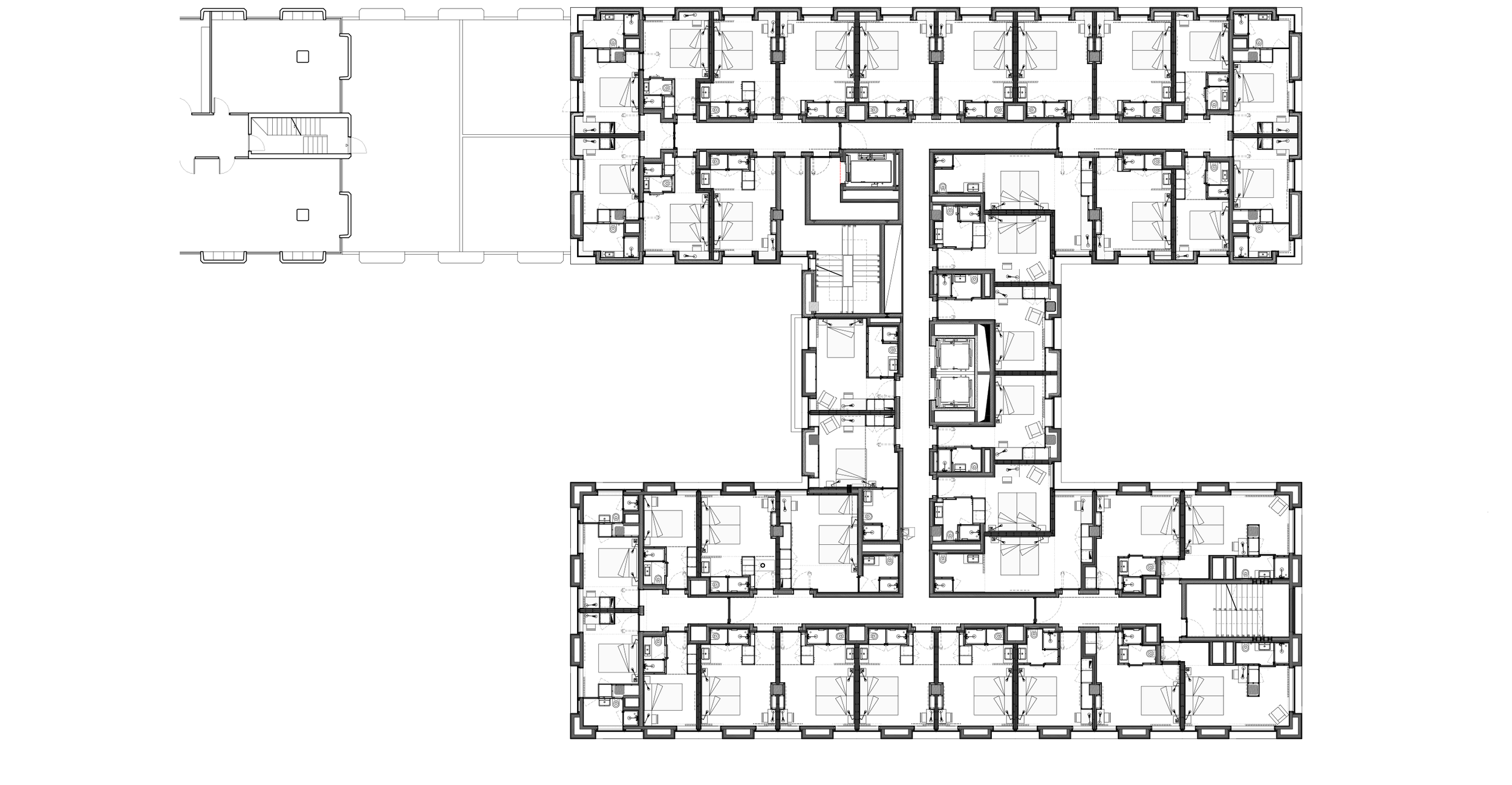
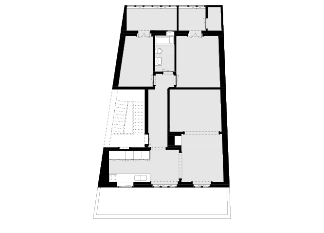
No que diz respeito à proposta para as tipologias habitacionais, desenvolvemos um sistema bastante simples e pragmático, onde desenhamos módulos iguais de tipologia para tipologia de forma a otimizar a construção dos apartamentos. Esta sistematização no desenho das tipologias permite que o mesmo seja facilmente adaptável em situações futuras.
Como estratégia de implantação do edifício no terreno optamos por construir ao longo de todo o perímetro do lote, permitindo assim a criação de um interior de quarteirão amplo com o máximo aproveitamento desta área exterior.
O acesso pedonal a este grande pátio, onde estão localizados os núcleos de acessos aos apartamentos, é feito de forma integrada através da criação de vários percursos desde as ruas que confrontam com o lote, estabelecendo desta forma uma franca relação com os espaços públicos já existentes e consolidados.
Através destas novas frentes de rua qualificadas, potencializamos o sentido urbano deste edifício que culmina o loteamento existente e estabelecemos também uma privilegiada relação visual com as zonas rurais envolventes.
Dando cumprimentos aos parâmetros urbanísticos presentes no PDM de Cascais em vigor, desenvolvemos a nossa proposta com 5 pisos acima do solo o que reforça a relação com a envolvente construída através da coerência volumétrica, contribuindo assim para um equilíbrio entre a escala e a linguagem presente na envolvente.
A opção pela construção de um edifício com uma dupla fachada, possibilita um melhor aproveitamento da luz natural, assim como a existência de ventilação cruzada nos apartamentos. Permite também uma otimização dos espaços de circulação, através do desenho das galerias que se desenvolvem em paralelo à fachada interior. Em termos de estratégia térmica, esta solução, acompanhada das varandas cobertas, proporciona um melhor controlo da radiação solar no interior dos apartamentos, ou seja, a existência de sombra no verão e radiação direta no inverno.
Localização: Cascais
Programa: Unidade de Habitação, 9853 m2
Data: 2019
Cliente: Câmara Municipal de Cascais
Arquitectura: Mafalda Ribeiro Ambrósio + João Gomes Leitão
Paisagismo: Elisa Laval
Engenharias: PRPC Engenheiros, OHMSOR e José Rosendo
Imagens 3D: Pedro Serrazina Studio